
Kalkulator Schodow
Jak Zaprojektowac Wygodne Schody Zabiegowe U Siebie W Domu
Jak Zaprojektowac Wygodne Schody Zabiegowe U Siebie W Domu

Jakie Powinny Byc Stopnie Na Zakrecie Schodow Zabiegowych Recepty Na Dom
Jak Zaprojektowac Wygodne Schody Zabiegowe U Siebie W Domu
Jak Zaprojektowac Wygodne Schody Zabiegowe U Siebie W Domu
Długość kroku jest od 60 do 66 cm średnia-63 cm.
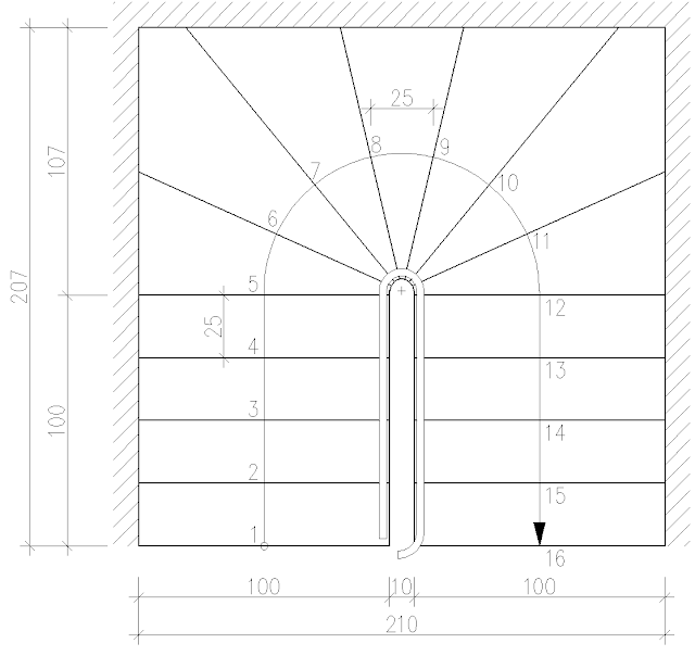
Jak obliczyć schody zabiegowe Kalkulator schodów pozawala wstępnie obliczyć ilość i rozmiar stopni schodów zabiegowych z podestem i krętych. Schody żelbetowe 18 441. Główną bazą do obliczeń jest wzór.
Schody ze spocznikiem dwubiegowe 90 w kształcie L Schody ze spocznikiem 180 dwubiegowe w kształcie U Schody trzybiegowe ze spocznikiem 180 stopni 2. Należy zachować taką samą szerokość stopni zabiegowych jak prostokątnych w połowie szerokości biegu. Obliczyć wymiary klatki schodowej.
Przykaład w jaki sposób rozrysować schody jednobiegowe. Warunki techniczne podają maksymalne wysokości stopni zależnie od przeznaczenia budynku. Przeliczanie schodów on-line - kalkulacja miejsca pod schody zabiegowe proste i kręcone.
Kalkulator schodów pozawala wstępnie obliczyć ilość i rozmiar stopni schodów zabiegowych z podestem i krętych. Schody oblicza się według wzoru bazującego na długości kroku. Które trendy wnętrzarskie będą cieszyć się największym powodzeniem w 2021 roku.
Schody to miejsce w którym łatwo o nieszczęśliwy wypadek. Jeśli nawet od tego promienia odjąć pół duszy czyli 5cm grubość poręczy 5cm to to dalej nam zostaje 45cm. Generalnie powinno się dążyć do tego żeby w odległości równej połowie szerokości biegu odmierzanej od strony duszy schodów także stopnie zabiegowe miały taką samą szerokość jak.
Litera h to wysokość stopnia a s to jego szerokość 63 cm to długość krótkiego kroku człowieka. Ranking TOP 3 Najpopularniejszych designerskich foteli. Wachlarzowe i zabiegowe powrotne j k zabiegowe 7 s.

Kalkulator Schody Zabiegowe 90 Stopni Drewniane Projektowanie Kalk Pro

Jak Zaprojektowac Wygodne Schody Zabiegowe U Siebie W Domu Stairs Interior Stairs Chart

3d Kalkulator Schody Zabiegowe 180 Stopni 1 2 Policzkowe W Ksztalcie U

Obliczanie Schodow Ze Spocznikiem Dwubiegowych 90 3d
Http Www Zhitov Ru Pl Lestnica3

3d Kalkulator Schody Zabiegowe 180 Stopni 1 2 Policzkowe W Ksztalcie U

Jakie Schody Sa Najlepsze W Domu Jednorodzinnym Strona 2 Z 2 Recepty Na Dom

Czy Warto Robic W Domu Schody Zabiegowe Recepty Na Dom

Kalkulator Schody Zabiegowe 90 Stopni Drewniane Projektowanie Kalk Pro

Kalkulator Schody Zabiegowe 90 Stopni Drewniane Projektowanie Kalk Pro

Budowa Schodow Normy Technika Dostawcy

Kalkulator Schody Zabiegowe 90 Stopni Drewniane Projektowanie Kalk Pro