
Jakie Wymiary Powinny Miec Wygodne Schody

Warunki Techniczne Dzial Iii Budynki I Pomieszczenia Muratorplus Pl

Schody Zewnetrzne Jak Zaprojektowac Schody W Ogrodzie Dom Pl

Jakie Wymiary Powinny Miec Wygodne Schody Wewnetrzne Dom Pl

Schody Drewniane Proste Jednobiegowe Kalkulator Program Do Projektowania Online 3d

Stopnie Budowlane Abc Ministerstwo Inwestycji I Rozwoju

Jednak w praktyce zaleca się utrzymywanie nieco większych wysokości 210 220 cm.
Schody wymiary warunki techniczne W związku z powyższym graniczne wymiary schodów stałych w budynkach o różnym przeznaczeniu określone w tabeli zamieszczonej w 68 ust. 2h s 06 do 065 m Szerokość stopni schodów zewnętrznych przy głównych wejściach do budynku powinna wynosić w budynkach mieszkalnych wielorodzinnych i budynkach użyteczności publicznej co najmniej 035 m. Graniczne wymiary schodów stałych W 68 określono graniczne wymiary schodów stałych w budynkach o różnym przeznaczeniu.
Podstawowe wymiary schodów wewnętrznych. Szerokość stopni schodów zewnętrznych powinna wnosić co najmniej 035 m. Maksymalna wysokość stopnia 0175 m.
Szerokość stopni stałych schodów wewnętrznych powinna wynikać z warunku określonego wzorem. Warunki techniczne - Schody i pochylnie. Przywołano wzór na wygodne schody który ma postać 2hs06 do 065 m gdzie h to wysokość stopnia a s szerokość.
Określono również szerokość stopni schodów wachlarzowych powinna. Szerokość stopni stałych schodów wewnętrznych powinna wynikać z warunku określonego wzorem2h s 06 do 065 m gdzie h oznacza wysokość stopnia s jego szerokość. Schody i pochylnie - warunki techniczne Wybrane informacje 1W celu zapewnienia dostępu do pomieszczeń położonych na różnych poziomach należy stosować schody stałe a w zależności od przeznaczenia budynku - również pochylnie odpowiadające warunkom określonym w rozporządzeniu.
Dzięki temu upewnimy się że wszyscy użytkownicy będą w stanie. Szerokość stopni stałych schodów wewnętrznych s oraz ich wysokość h powinny być tak dobrane aby spełniały warunek. Szerokość stopni schodów zewnętrznych przy głównych wejściach do budynku powinna wynosić w budynkach użyteczności publicznej co najmniej 35 cm w innych budynkach co najmniej 30 cm.
Szerokość stopni stałych schodów wewnętrznych powinna wynikać z warunku określonego wzorem. Według warunków technicznych graniczne wymiary schodów stałych dla budynku produkcyjnego wynoszą. 2h s.
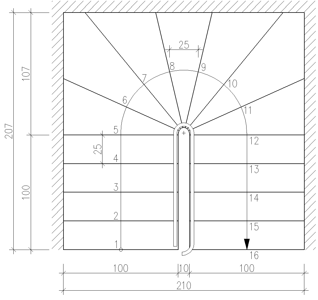
Jak Zaprojektowac Wygodne Schody Zabiegowe U Siebie W Domu

Schody Zewnetrzne Jak Zaprojektowac Schody W Ogrodzie Dom Pl

Czy Lepsze Sa Schody Jedno Czy Dwubiegowe Recepty Na Dom

Stopnie Budowlane Abc Ministerstwo Inwestycji I Rozwoju
Jak Zaprojektowac Wygodne Schody Zabiegowe U Siebie W Domu

Szerokosc I Dlugosc Spoczniki Budowlane Abc Ministerstwo Inwestycji I Rozwoju

Szerokosc Biegu Budowlane Abc Ministerstwo Inwestycji I Rozwoju

Zdjecie Numer 6 W Galerii Projektowanie Domu Dobre Sposoby Na Domowa Jadalnie Kids Rugs Decor Home Decor
Jak Zaprojektowac Wygodne Schody Zabiegowe U Siebie W Domu

Schody Strychowe Fakro Lwk Plus 529 00 Zl Folnet Ekspert Dachowy

Plyta Ceramiczna Aristoni Kup Na E Otoczenie Pl Bath Mat Home Decor Decor

Jak Obliczyc Schody Objasnienie Krok Po Kroku Archpasja